「間取りって、こんなに決まらないものなの…?」
何度も打ち合わせをしているのに、提案された図面を見ても、まったく納得できない。
SNSを見ては不安になり、自分達でも図面を描いてみるけど、気づけば疲れきっていた──
そんなHさん夫婦が、「この間取り、最高だね」と笑い合えるようになるまでのリアルな過程を、図面付きでご紹介します。
YouTubeを観て、図面も描いてみた──でもモヤモヤは晴れなかった
- YouTubeを見て、図面を描いてみた
- インスタを見て、情報を手あたり次第に集めた
それでもHさん夫婦のモヤモヤは、まったく晴れませんでした。

あのまま進めていたら、いつまでも間取りが決まらず、決まったとしてもストレスだらけの家になっていたと思います。
当時は工務店を変えるか、もう家づくりそのものを諦めるか──そんなギリギリのところまで気持ちが追い詰められていたと言います。



最後の最後、お金を出してでも、他の人の意見を聞いてみよう。
そう思った矢先に見かけたのは、インスタグラムで募集したまるたの間取り相談企画。
まず最初に行われたのは、「今ある図面の鬼チェック」でした──
「この図面、どこがダメなんだろう?」──ベース図面を鬼チェックして見えた落とし穴
Hさんが「ワクワクどころかモヤモヤする」と話す、工務店によるベース図面がこちら。
ベースプラン-1階


ベースプラン-2階


22.92+10.77=33.69坪
Hさんのモヤモヤポイントは以下。
- キッチンの食器棚背面にテレビスペース
- 間取り全体のぎこちなさがしっくりこない
私のチェックバックが以下。
チェックバック-1階


- 車庫入れにジャマな柱
- 買い物帰り以外のただいま動線の悪さ
- 洗面手前のナゾスペース
- 落ち着かない寝室
- 悪すぎる配膳動線
- リビングのナゾスペース
- ナゾスペースが吹抜け
- 土間スペース経由の階段
チェックバック-2階


- 2階の各洋室~トイレ動線の長さ
このチェック結果と、Hさんがご要望シートに書いてくださった内容をもとに、ラフプランを作りました──
ZOOM越しに食い入るように見つめたラフプラン──「あの憂鬱」が一気に吹き飛びました
「え、どっちも良すぎて選べない…!」
たった1回のZOOMで、Hさん夫婦は初めて“間取りで迷う楽しさ”を知ったそう。
Hさんの間取りに対するご要望は以下。
- 家族が自然に集まる場所がほしい⇒おこもり空間
- 心がおだやかになる家事動線
- 室内に洗濯物を干すスペース(土間など)
- 20年後のライフスタイルに対応すべく介護のしやすい間取り
⇒1階寝室、その横に横入りトイレ、脱衣室は広く
これをもとに作ったラフプランは2つです。
まずは窓なしで間取りのみを見てもらいました。
ラフプランA
ラフプランA-1階


ラフプランA-2階


21.66+11.02=32.68坪(ベースプラン-1.01坪)
- 土間を優先した帰宅動線最強なプラン
- おこもりスペースは少し控えめ
ラフプランB
ラフプランB-1階(動線最強ver.)


ラフプランB-1階(キッチン対面ver.)


ラフプランB-2階


23.67+10.76=34.43坪(ベースプラン+0.74坪)
- 土間スペースは玄関を少し広くすることで対応
- ただし、ランドリースペースはガッツリ
- おこもり感が強めのおこもりスペース
ここまでの内容をZOOMで打ち合わせた後は、検討期間に入ります──
「工務店では言われなかった視点にハッとした」──検討期間で変わった判断軸
「まるたともっと合う間取りを見つけよう」では、ZOOMでのアドバイスやラフプランを受けて、施主が「じっくり考える時間」を3日~1週間ご用意しています。
後から湧いてくる気づきも、最終図面にしっかり反映させたいからです。
もちろん、検討期間中もラインでの質問は何度でもOK。
Hさんが検討期間中に新しく要望された内容は以下2つでした。
- 太陽光パネルをより多く載せるために、2階の居室を北側に配置したい
(以前工務店から提案されたプランに、そのようなものがあった) - 間取りの雰囲気を変えず坪数を30坪程度まで減らす
「太陽光を優先したら、南に窓がつけられない」──知らなかったことへの“怖さ”



以前工務店から提案された方法で太陽光パネルの面積を増やすと、2階の南側に窓がつかないことは説明されていますか?



「2階の南は日が一番あたるベストポジションなのに、太陽光パネルの面積を増やすために窓なしにしていいの?」が私の正直な意見です。
吹き抜けも、南と北とでは明るさが全然違いますよ。
この一言を聞いた瞬間、Hさんは背筋がすっと冷えるような感覚を覚えたそう。



あのまま進めていたら、住み始めてから“真っ暗なリビング”に愕然としていたかもしれない。



工務店は私たちの要望を「いいですね」と頑張って間取りに反映させてくれるけど、デメリットを教えてくれたことがない——
工務店では一度も言われなかった視点。
それを、「セカンドオピニオン」で初めて知ったのです。
「全部かなえたい」は、納得を遠ざける
坪数も、おこもり空間も、土間も、太陽光も、横入りトイレも──
どれも大事だからこそ、どうにか全部盛り込みたくなる。
そんなHさんたちに、私がお伝えしたのが以下。
- おこもり、土間、寝室横のトイレ、坪数を減らすこと、太陽光…この5つすべてを叶えようとすると、どうしても間取りが苦しくなります。
- できたとしても、当初の違和感ある間取りになる可能性が高いです。
- だから、優先順位をつけてみてください。
- それから、太陽光は載せたとして、どれくらいの効果があるのか。
そこを調べてみる必要もありますね。
焦らず、一つずつ。
このアドバイスが、Hさん夫婦にとって「整理のはじまり」になりました。
Hさんが見つけたのは、「自分たちらしい優先順位」
ラフプランをもとに、夫婦で何度も話し合い、悩んで、調べて──
少しずつ、Hさんの「これだけは大事にしたい」という軸が見えてきました。
Hさんからいただいた最終プランに向けてのご要望は以下。
H様のご要望-1階


H様のご要望-2階


- 南からの採光は犠牲にしない。太陽光はその範囲で設置。
- 動線と暮らしやすさを守るため、坪数は減らさない。
- キッチンからリビング・ダイニングを見渡せる配置のプランAをベースにする。
- 長い土間がお気に入りだったけど、ファミクロとランドリーとして使うことにする。
- そうすると買い物帰り動線がリビング経由になるので、出入口を引き戸にしたい。
すべてを詰め込むのではなく、「これは譲れない」「これはいらないかも」と整理していく中で、Hさんご夫婦の優先順位がハッキリと見えてきたのです。
そして。
ここまでに育ててきた答えをすべて詰め込んだ最終プランが、いよいよできあがります──
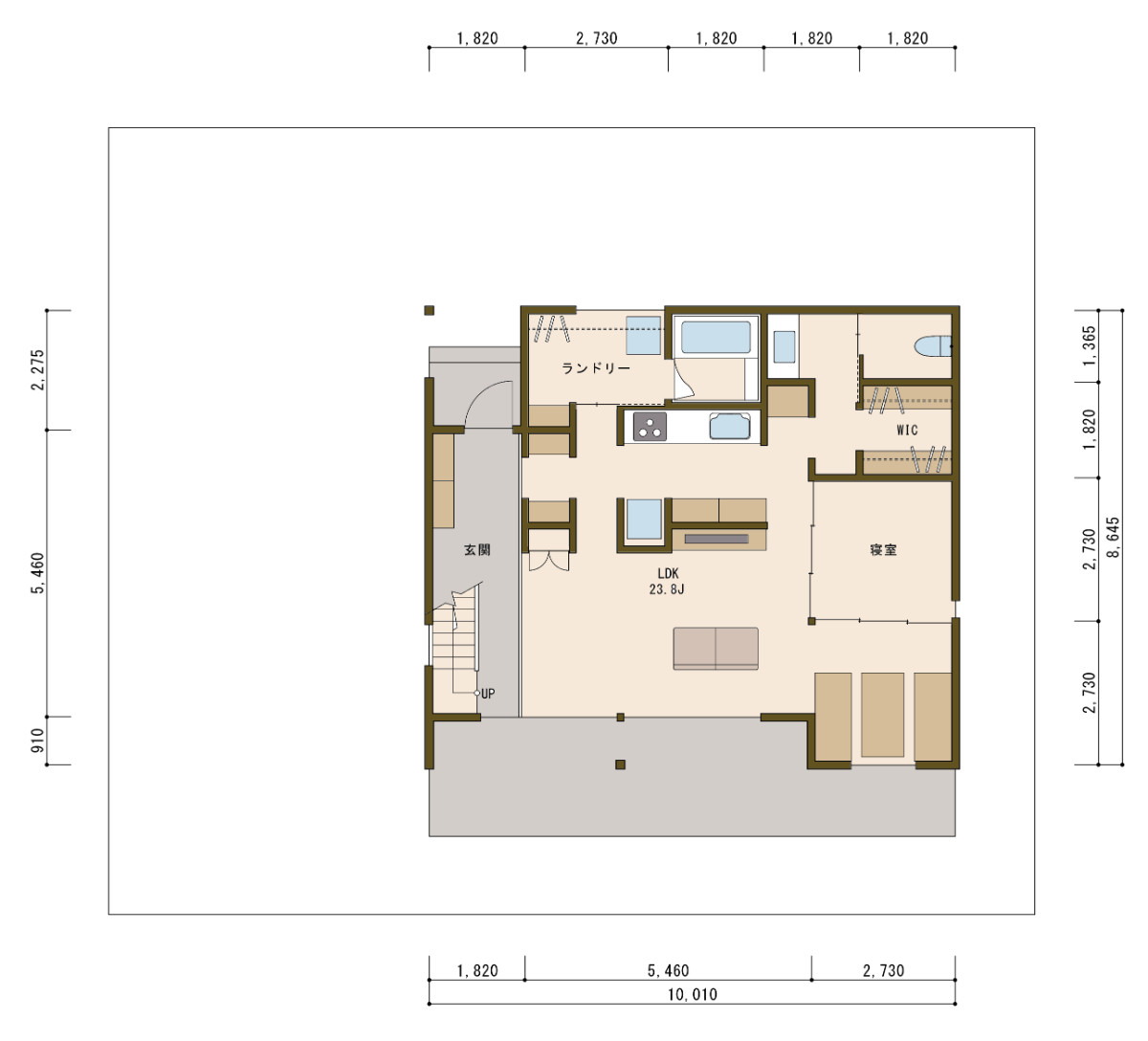
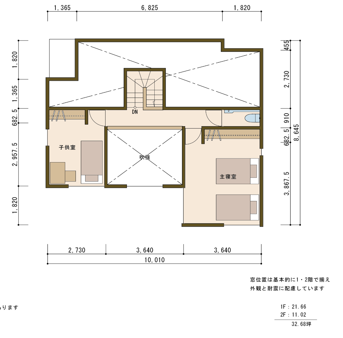
最終図面に、鳥肌が立った理由



図面を見て、鳥肌が立ったのは初めてでした。



間取り図の中で生活している自分がいました
そんな感覚が自然に湧いてきたのが、以下の最終プランです。
最終図面-1階


最終図面-2階


21.66+11.02=32.68坪(ベースプラン-1.01坪)
このプランを見たHさんの感想は──
相談を経て、気持ちはここまで変わった
最終図面後のアンケートに記載いただいたH様の声を、そのまま掲載します。
最終間取り図を見てプロに頼むとこうも違うのかと驚きと嬉しさで鳥肌が立ちました。
(工務店さんもプロなのですがこんな感覚は今までに1度も無かったです…)
具体的なイメージが湧き、間取り図の中で生活している自分がいました。
そうするとここはどうなるのかな?と自分でも考える、調べる行動につながりました。
それが楽しくて楽しくて。何故まるたさんは私の動作をわかってるの?
そうなの!だからここはこうなのよ〜!と独り言を言いながらニヤニヤしていました。
夫とも二人で「まるたさんはここがこうでこうだからこうって言ってるよね、え?すごくない?」
動線が完璧でした。私達の動きどこかで見てます?(笑)
二人で間取り図を見ながらまるたさんの説明が聞こえてきました。
間取り図から読み取れるってこういうことなんですね。
今までの間取り図はずっとモヤモヤでしかなかったし、スッキリしない気持ちがいっぱいで打ち合わせが終わるたびに、んんんんん〜!!!と不完全燃焼でした。
無駄な打ち合わせを重ねていたんだなと思いました。
まるたさんに間取り相談をして、デメリットや、太陽光や屋根の形状、採光のことを言っていただいて、その視点は無かったとちょっと怖くなりました。
工務店側からも話が出てこなかった事なのでセカンドオピニオンはやって損はないと本当に思いました。あのまま進めていたらいつまでも間取りが決まらず決まったとしてもいざ生活した時に不便だらけでストレスが溜まる家になったことでしょう。
間取り相談はお金を出す価値有りです。 相談して良かったぁ~!!!



間取り相談をスタートさせて一発目の感想がこれで…実は私、ちょっと泣きました。
「納得」より「妥協」で間取りを選んでいませんか?
本当は、まったく納得できていない。
でも、ここで止まったらいけない気がして、無理やり前に進もうとしていませんか?
もしそうなら、私と一緒に、もっと合う間取りを見つけましょう!
全力でお手伝いしますよ(^-^)



