「本来なら楽しいはずのお家作りが毎日悩んで全然楽しくなく、行き詰まっている」
そう話すKさんは、これまでにたくさんの要望をハウスメーカーに出してきました。
それなのに、図面には要望がほとんど反映されず、「横並びキッチンしか気に入っていない」と感じるまでに。
この記事では、そんなKさんが“前に進める手ごたえ”を取り戻すまでの過程を、実際のやりとりや図面とともにご紹介します。
「お家のことで毎日悩んでばかり…」要望が反映されない図面に、疲れ果てていました
「お家のことで本当に毎日悩んでおります」
Kさんがハウスメーカーに伝えていたのは、暮らしを考えたごく自然な要望でした。
- 冷蔵庫はパントリーの中に入れたくない
- 冷蔵庫だけでなく冷凍庫も置きたい
- ウォーターサーバーが置きたい
- ルンバの基地がほしい
- キッチン近くにスタディカウンターがほしい
でも、打ち合わせを重ねても、図面は変わらないまま。
伝えているのに反映されない。
その繰り返しに、気持ちも沈んでいったそう。

ハウスメーカーとは別のプロにアドバイスをしてもらいたい
そんな想いで、Kさんは間取り相談企画に応募してくださいました。
「冷蔵庫がパントリーの奥…?」要望とかけはなれた図面を徹底チェック
「家事動線をよくしたいのにパントリーの奥に冷蔵庫があると買い物帰りに遠いし、リビングからも使いにくい」
Kさんに書いていただいたご要望シートには、このような「違和感」がいくつも並んでいました。
暮らしやすさを考えて出した要望のはずなのに、出来上がった図面にはその気配が見えない。
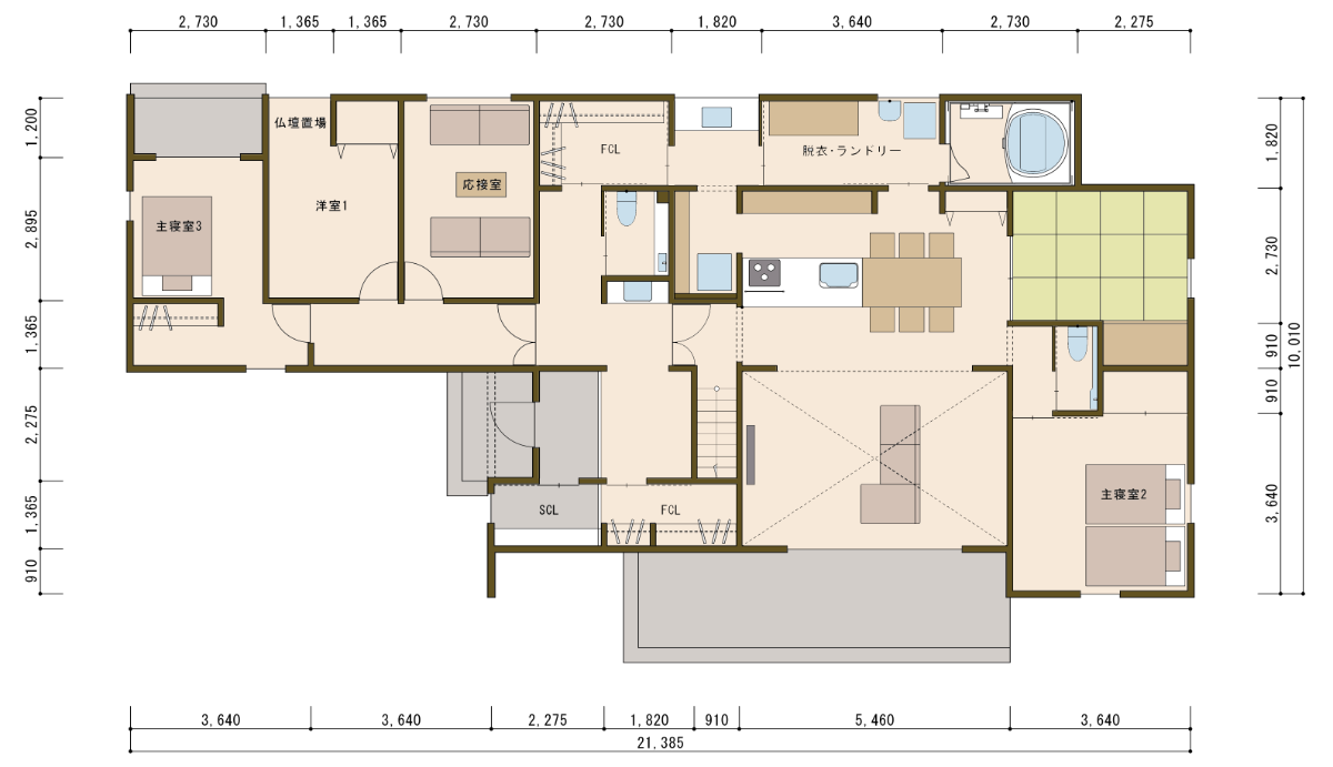
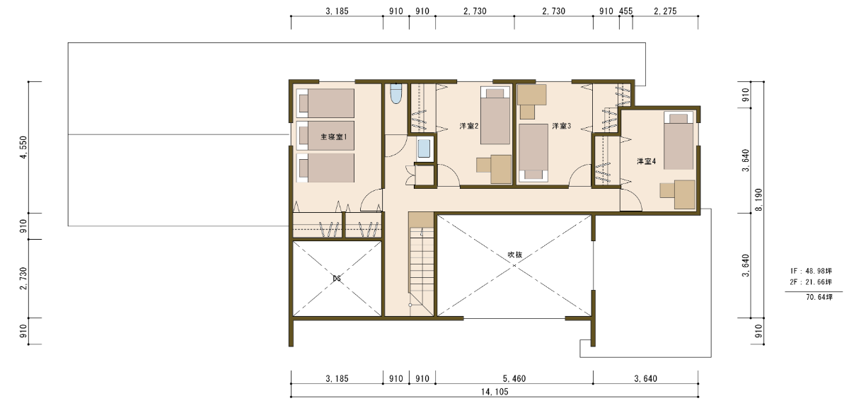
Kさんがそう話すハウスメーカーによるベース図面がこちら。
ベースプラン-1階


ベースプラン-2階


48.98+21.66=70.64坪
Kさんのモヤモヤポイントは以下
- 買い物帰りにパントリーや冷蔵庫が遠い
- 冷蔵庫がパントリー内にあり、使い勝手が悪そう
- 主寝室のすぐ隣にトイレがあるのはイヤ
- リビングの収納がキッチン裏だけで不安
私のチェックバックが以下。
チェックバック-1階


- 玄関そばの洗面台位置が微妙すぎるので必要か確認
- トイレ位置を少し変えるだけで、買い物帰り動線はかなりよくなる
- 洗面横のファミクロは通路部分に服がはみだし、通りにくい
- アウトセットの引き戸を多用しているが、音漏れや扉が手前に出てくるデメリットを理解しているか
- パントリーの棚が冷蔵庫の横にあり使いにくい
- キッチン、ダイニング廻りの寸法がギチギチで使いにくい
- ユニットバスが大きすぎるのでは?(ZOOMでご主人が大柄な方で大きなお風呂を要望されていると判明)
- 主寝室のベッド配置が足元からダイブするアクセスになっている
チェックバック-2階


- 階段や2階の廊下に光が入らず真っ暗
- この敷地で一番条件のいい南西の角がDS(デッドスペース)になっている
このチェック結果と、Kさんがご要望シートに書いてくださった内容をもとに、ラフプランを作りました——
「横並びキッチンしか気に入っていない…」そこから始まった、ラフプランの提案
「ハウスメーカーのプランで気に入っているのは、横並びキッチンだけです」
そんなKさんの言葉と、ご要望シートにびっしり書かれた“気に入らないところ”の数々。
そこで今回は、お好みの傾向を探るために、切り口を変えたラフプランを3つご提案しました。
まずは窓なしで間取りを確認していただきます。
この時点で分かっていたKさんの要望は以下。
- 水廻りをまとめて家事ラク動線にしたい
- キッチン横の部屋は和室ではなく洋室にしてピアノを置きたい
- 1階に将来親御さんが使える寝室を作りたい
- ご主人が会社の人と会議をする部屋がほしい
- 洗面と脱衣室は別にしたい
- 子供たちが宿題をするデスクカウンターがキッチン近くにほしい
- リビング階段とホール階段で悩んでいる
ラフプランA
ラフプランA-1階


ラフプランA-2階


49.59+21.04=70.63坪(ベースプラン-0.01坪)
- ベースプランを元に配置したプラン
- 階段の位置で迷われているので、A案はホール階段を採用
- キッチン、ダイニング廻りをゆったりさせ、要望されているスタディカウンターも設けた
ラフプランB
ラフプランB-1階


ラフプランB-2階


49.90+19.53=69.43坪(ベースプラン-1.21坪)
- 玄関を西に寄せてLDKを充実させたプラン
- リビング階段を採用
- 南向きの条件がいい場所に畳コーナーを提案
ラフプランC
ラフプランC-1階


- ラフプランBの畳コーナーがいらないバージョンとして、リビングの収納を増やしたパターンも作成
- リビングの収納が少ない問題を一気に解消
- 2階はラフプランCと同じ
49.90+19.53=69.43坪(-1.21坪)
ラフプランを見ながらあふれ出るご要望の数々
3つのプランは、Kさんのお好みを探るために、色々な要素を散りばめて作ったのですが——
プランを説明していく中で、狙い通り、ご要望シートに書かれていないご要望が次々と出てきました。
- 玄関の洗面台は、ご主人の会社の人用で、プライベートエリアに入らないようにしたい
- 玄関より西側のエリアは帰宅時間の遅いご主人が使うエリア
- 体格のいいご主人が大きなお風呂を要望されている
- 冷凍庫を置きたいとハウスメーカーに伝えたのに、却下されたこと
- ウォーターサーバーもルンバ基地も却下されたこと
- リビング階段にするか否は迷っているので、他の要望がかないやすいほうで提案してほしい
必要なもの、そうでないもの──暮らしと向き合った検討期間
「まるたともっと合う間取りを見つけよう」では、ZOOMでのアドバイスやラフプランを受けて、施主が「じっくり考える時間」を3日~1週間ご用意しています。
後から湧いてくる気づきも、最終図面にしっかり反映させたいからです。
もちろん、検討期間中もラインでの質問は何度でもOK。
「追加の要望と気になっている点です。盛りだくさんになってしまいました」
検討期間にKさんから届いたのは、さらに細かく整理されたご要望のリストでした。
- 玄関に子どものおもちゃや三輪車、自転車の充電器、ヘルメットなどが置ける広さのシュークロがほしい
- ご主人の部屋にWICがほしい
- 1階のランドリー近く、かつ、ただいま動線上にファミクロがほしい
- 来客からリビングが覗かれないよう配慮してほしい
- 2階の子ども部屋は3部屋とも収納別で6畳ほしい
ZOOMでのヒアリングで深まった暮らしのイメージに加え、この検討期間に出てきた内容も踏まえながら、最終図面の作成へと進んでいきます——
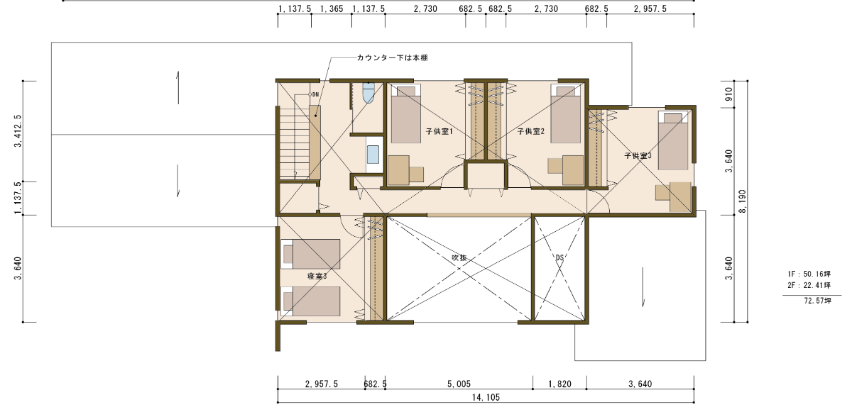
ハウスメーカーに無理だと言われ続けた要望が【全部入った】最終図面に
冷凍庫も、ウォーターサーバーも、ルンバも、スタディカウンターも全部採用。
ずっと「難しい」と言われ続けてきた要望が、すべて形になった――
Kさんご一家の暮らしを考え抜いた、最終図面が完成しました。
最終図面-1階


最終図面-2階


50.16+22.41=72.57坪(ベースプラン+1.93坪)
このプランを見たKさんの感想は——
あきらめかけていた要望を、「もう一度伝えてみよう」と思えた
最終図面後のアンケートとラインに記載いただいたK様の声を、そのまま掲載します。
本来なら楽しいはずのお家作りが毎日悩んで全然楽しくなく行き詰まっていたので、他のプロの設計士さんのご意見やご提案を色々聞けてアドバイスもしていただけて、とても嬉しかったです。
本当にお忙しい中ZOOMでのお話しや図面作成までして下さりありがとうございました。
大変お世話になりました。
パントリー内の冷蔵庫の件やキッチン後ろのデスクの件などをもう一度強く設計士さんに伝えてみたいと思います。



無理だと言われ続けたデスクカウンターや気に入らない冷蔵庫の位置について、もう一度ハウスメーカーに考え直してもらえるキッカケになれてよかったです!
一度立ち止まって見直したからこそ、前に進めた人がいます
Kさんは「もう一度、ハウスメーカーに要望を強く伝えてみよう」と思えたことで、家づくりが前に進みました。
もし、あなたも要望を出すたびに「難しいです」と返されて、諦めかけているなら──
一度立ち止まって、私と一緒に見直してみましょう。
ちなみに、このKさんの事例は2×4工法。
在来工法と比べて制約があるので苦手とする建築士が多いですが、実は私、ツーバイフォーが大好物です(^-^)
ツーバイフォーだから間取りがうまくいかないのかも…と悩んでいる人も、安心して相談してくださいね。



